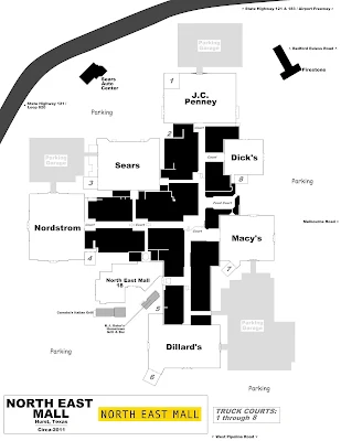
NORTH EAST MALL, circa-2011. Since the turn of the century redo, two anchors have been rebranded, with one being demolished. Freestanding restaurants, such as Carraba's Italian Grill and R.J. Gator's Hometown Grill & Bar, have opened in the periphery of the mall's Rave North East Mall 18 megaplex. This motion picture venue was rebranded by Cinemark in June 2013.
During 2015, the existing Food Court was rebuilt into an upscale "Dining Pavilion". Similar upgrades have been done at Simon properties such as Atlanta's LENOX SQUARE, Miami's DADELAND MALL, New York City's ROOSEVELT FIELD MALL and Philly's KING OF PRUSSIA.
Drawing from www.simon.com / Simon Property Group
During 2015, the existing Food Court was rebuilt into an upscale "Dining Pavilion". Similar upgrades have been done at Simon properties such as Atlanta's LENOX SQUARE, Miami's DADELAND MALL, New York City's ROOSEVELT FIELD MALL and Philly's KING OF PRUSSIA.
Drawing from www.simon.com / Simon Property Group
The 48-year-old J.C. Penney was converted to a new concept Penney's store in 2019. It now featured a spa, beauty salon, coffee lounge and barber shop. A new script logo was also introduced.
Photo from www.simon.com / Simon Property Group



